Description

M3M Ikonic Residential in Gurgaon skyline, an iconic address with spaciously designed residences and a plush lobby for a grand arrival experience. Solace, opulence, and exquisiteness emanate together, to sum up, the unsurpassed living participation which captures the essence of tranquility. M3M Ikonic Gurgaon will elevate you to a uniquely urban elegance that will make you feel like a star. Experience a behavior unapologetically lavish and interwoven with unique experiences. Be it entertainment, relaxation, fitness, or celebration at M3M Ikonic Sector 68 Gurgaon, you live amid copiousness of amenities. Facilities here are handpicked for the needs and requirements of all the family members.

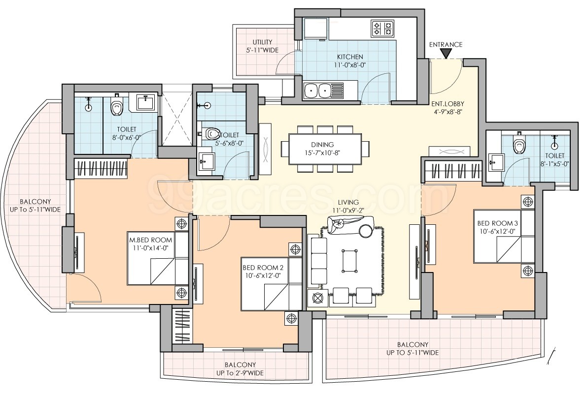
The project consisting of 2 BHK and 3 BHK luxurious apartments with exclusive facilities and easy connectivity. Well located at Sector 68 Gurgaon connected Golf Course Extension Road, Near Sohna Road Gurgaon. Comfort, wealth, perfection emanates together to add up the unmatched living experience which captures the spirit of serenity. M3M Ikonic At The M3M Marina Gurgaon will promote you to an exclusively urban splendor that will make you feel like a luminary. Experience a lifestyle unapologetically abundant and interwoven with matchless experiences. Be it amusement, health, recreation, or festivity at M3M Ikonic Marina, you live in the middle of the prosperity of amenities.

Highlights:-

  • Secured gated community with guard rooms, and CCTV.
  • The clubhouse at M3M Ikonic is one of the largest clubhouses in the vicinity. A large expanse of central landscaped greens.
  • A Lavish Entrance with an eye-catching fountain greets the residents with a resort-like feel.
  • The iconic ripple tower design gives M3M Ikonic a unique look.
  • Exclusive premium lounge pool, salon, café, & many more.
  • Rainwater harvesting and STP are provided to make the campus sustainable.

Location Advantage:-

  • Sited at Sohna road and has easy admittance from Southern Peripheral Road & NH-8
  • A 30-minute drive from Delhi International Airport
  • Easy access to all the major Business Hubs & Retail destinations
  • Medicity, Max, and Artemis are the major hospitals located near Ikonic At M3M The Marina

Card image cap

Parking

Card image cap

Swimming Pool

Card image cap

Jogging

Card image cap

Cafeteria

Card image cap

Club House

Card image cap

Free Fighting Equipment

Card image cap

GYM

Card image cap

Kids Play Area

Card image cap

Power Backup

Card image cap

Restourant

Card image cap

Sports Facility

Card image cap

Theatre

Card image cap

Video Security

Card image cap

Wi-Fi Connectivity

Card image cap

Lift & Escalators

Card image cap

Modern, Well-Maintained Washrooms

Enquire Now